This case consists of two floors on the ground and one basement. Today, we will unlock the remaining two floors (the second floor and the basement) for everyone, the "Private" space & the "Pirate Dream" space of the Dream Building series.
ART DECO
接下来,请翻转手机观看





























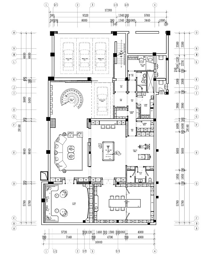
一层平面图
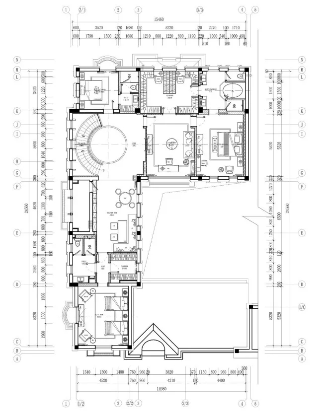
二层平面

地下室平面图
项目说明
全案机构 | 金象饰家、艺象家居
项目地址 | 浙江·湖州
项目面积 | 905㎡
主案设计 | 源 木
软装设计 | 沈超悦
项目摄影 | 叶 松
© 2022 容象空间设计(杭州)有限公司.
浙ICP备2022005907号
Designed by Wanhu