Art Deco
游走于古典与现代之间
Wandering between classical and modern
DESIGN

在历史追溯中
是20年代纽约曼哈顿觥筹交错的华灯闪烁
是与机械大工业背景下的冲突之美
是一个时代经典的最高级别的品位
··· ···
It was the glittering lights of Manhattan in the 1920s
It is the beauty of conflict under the background of mechanical industry
It is the highest grade of classic in an era
··· ···


受过良好教育的上层社会人士,并承载着整个家族的传承使命,对永恒的设计有着自己独特的见解,即有狂野的一面,也懂得享受生活。设计师将人物气质与空间气质完美融合,定调为一个拥有着独特品味与绅士格调的时尚男士之家。风格上汲取《了不起的盖茨比》中的经典Art deco装饰风格,结合电影《50度灰》中的现代主义表现手法进而混搭成作。空间内贯穿使用几何麦穗元素,大理石与铜质金属材质相佐,色彩定调以高级感的冷色系黑、金、灰、白四色为主线,演绎空间的视觉美感,看似简单却蕴含着极具品位的隐藏式贵族气质,展现了主人别致而时尚的品味,低调内敛却光芒万丈。
The well-educated upper class, bearing the mission of the whole family, have their own unique views on the eternal design, that is, they have a wild side and know how to enjoy life. The designer combines the character temperament with the space temperament, and sets the tone for a fashionable men's home with unique taste and gentleman style. In terms of style, it absorbs the classic Art Deco decoration in the Great Gatsby, and combines the modernist expression techniques in the film "50 degrees gray". The space is permeated with geometric lines, wheat ear elements, marble and copper metal materials. The color setting takes advanced cold color black gold and gray as the main line to deduce the visual beauty of the space. It seems simple but contains hidden noble temperament with high grade, showing the owner's unique and fashionable taste, low-key and luxurious.
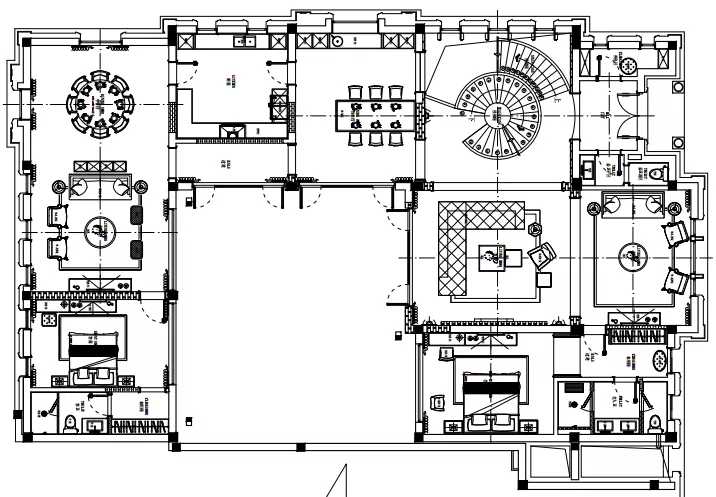
平面布局图
Floor Plan
一层平面图
二层平面图
地下室平面图
本案由地面两层和地下一层构成,每一层都有一个空间主题,小编将通过三篇软文,为大家一层一层的拨开这套作品的核心,今天先为大家解锁第一层,筑梦系列之“平行”空间。
This case is a mixture of the designer's tribute to the classic Art Deco decoration style in the film "the Great Gatsby" and the modernism expression in the film "50 degrees gray". The space is permeated with geometric lines, wheat ear elements, marble and copper metal materials are matched. The color setting is mainly composed of high-level cold colors of black gold and gray white, which deduces the visual beauty of the space. It seems simple but contains a hidden aristocratic temperament with high grade, which is low-key and luxurious.
1F|平行空间

Vestibule
门厅
入口地面的大理石拼花,几何型的黑白图案折射出看不见却很耀眼的光芒,圆形的轮廓象征着无限的轮回往复,“ 时尚永远是个轮回!经典的风格是一种永不会褪去的时髦”。
The marble mosaic on the entrance floor, the geometric black-and-white pattern reflects the invisible but dazzling light. The circular outline symbolizes the infinite cycle and "fashion is always a reincarnation! Classic style is a fashion that will never fade away.
Living Room
客厅

进门左手边的大客厅空间,兼具朋友聚会与商务洽谈的功能。主视觉以壁炉为中心,圆形的真火壁炉,如同欲望之眼,你凝望它时,它也在度量你。
In the left-hand side of the door of the large living room space, both friends gathering and business negotiation function. The central vision is the fireplace, a circular fireplace with a true fire, like the eye of desire that measures you as you gaze at it.
壁炉镶嵌的背景铜板墙,采用腐蚀浮刻工艺雕刻做出的城市剪影效果,整个空间是男主人未来纵观天下之事,胸怀天下之气度的精神意念,谈笑有盈、宠辱不惊,赋予家族传承精神的内在定义。
The fireplace inlays the background copper plate wall, uses the etching float to engrave the craft carving to make the city silhouette effect, the entire space is the male host will survey the world's affairs in the future, harbors the world's magnanimous spirit idea, talks and laughs to be full of joy, is not surprised, the inner definition of the family legacy.
每件家具永恒的优雅和精致与整个环境完美契合,充满本能野性冲动的奢华精英世界,大胆的先锋派风格。一组意大利进口古典沙发成为压场尤物,每一颗纽扣的褶皱都皱的特别精致优雅,看似简单的设计,却将空间里的内敛气度与不张扬的华丽感都演绎的很传神,不带一丝的奢靡和浮夸。
The eternal elegance and delicacy of each piece of furniture perfectly matches the whole environment, the luxurious elite world full of instinct and wild impulse, and the bold avant-garde style. A group of Classic Sofas imported from Italy have become the objects of pressure. The folds of each button are extremely delicate and elegant, seemingly simple in design, but the restrained bearing and quiet flamboyance of the space are very vivid, without a hint of extravagance or flamboyance.
Lounge Room
休闲厅
与大客厅紧挨着的是设计师为女主人特别设计的女性空间,整个空间散发复古内敛的时尚主张感,郎世宁宫廷风格的复刻壁纸,是现代与古典元素的隔空对话;灰调子的蓝与紫的色彩对话,透着唯美而暧昧的气息;绒面材质沙发与金属的混搭,碰撞出有机形态的柔美气质,慵懒又高贵。
Next to the large living room is a woman's space specially designed by the designer for the hostess. The whole space exudes a sense of retro and introverted fashion. The reproduced wallpaper in the style of Giuseppe Castiglione's court is a dialogue between modern and classical elements Gray tone of the blue and purple color dialogue, through the aesthetic and ambiguous atmosphere; Suede Material Sofa and metal mix, collision of Women Lazy and noble exclusive characteristics.
Western Kitchen
西厨
灰白配金的色彩基调,干净利落,让人眼前一亮。从餐桌到地面采用时下最流行的岩板材料,被誉为饰材界的“法拉利”,大块面的白色大理石纹理岩板与铜质金属背景墙相搭配,随意的一抹绿,空间便有了生命的灵动,低调奢华,高级感十足。
Gray and white with gold color tone, clean and neat, let a person eye bright. From the table to the ground using the most popular rock plate materials, known as the decorative materials industry "Ferrari" , large surface of the white marble texture of the rock plate and copper metal background wall with a casual touch of green, the space will have a lively life, low-key luxury, high-class feeling.
Western Kitchen
中餐厅
中餐区
餐厅被分为就餐区和休闲区。设计师认为在商务洽谈中,人与人之间是需要保持一定距离感的,而在居住的亲密关系当中,人的距离应该是更亲近的。他考虑中国人的生活习惯,主人的家庭特性,希望通过空间尺度关系与家庭关系的调和作用变得更为融合,营造“家人闲坐,灯火可亲”的氛围感。
The dining area is divided into a dining area and a leisure area. Designers believe that in business negotiations, people need to maintain a sense of distance between people, and living in close relationships, people should be closer. He considered the living habits of the Chinese people and the family characteristics of the host, hoping to become more integrated through the spatial scale of the relationship and family harmony, creating a "family sitting idle, light friendly" atmosphere.
餐厅聚会区
三角的屋顶顶面拉伸了整个空间的气度,顶部和门头的金属麦穗装饰元素,从电影海报中复刻的定制款装饰画,以及明黄色的贵族感色调运用,完全拿捏住设计意图的中心思想,恰如其分的呼应主题。
The triangular roof surfaces stretch the entire space, with metallic wheat tassels adorning the top and the door, custom-made prints copied from movie posters, and the use of bright yellow, aristocratic hues, it completely captures the heart of the intent, appropriately enough.
Bedroom
卧室
男孩房
一层其实暗藏两处卧房,一处是在客厅背面沉稳雅致的长辈房,方便长辈的饮食起居;一处是与餐厅休闲区联通的美式男孩房。三代同堂,人物关系在空间里交互,又互不干扰,爱与理性构建家族关系既融合,又有尺度的“平行”空间概念。
On the first floor, two bedrooms are actually hidden. One is the quiet and elegant elder room at the back of the living room, which is convenient for the elder to eat and live. The other is the american-style boys room connected with the Lounge area of the dining room, where three generations live together and the relationships of the characters interact in the space, and mutual non-interference, love and rational construction of family relations both integration, and the scale of the "parallel" space concept.
To be continued
...
项目说明
全案机构 | 金象饰家、艺象家居
项目地址 | 浙江·湖州
项目面积 | 905㎡
主案设计 | 源 木
软装设计 | 沈超悦
项目摄影 | 叶 松
参与品牌 | 锐思瓷砖、杭州必美地板
© 2022 容象空间设计(杭州)有限公司.
浙ICP备2022005907号
Designed by Wanhu